Ang Hangzhou Giant Lift Co., Ltd. na matatagpuan malapit sa napakarilag na destinasyong panturista sa West Lake --- Hangzhou, isang lungsod ng "pagbabago, sigla, pakikipagtulungan at pagpaparaya"...Kami ay nakikibahagi sa pagmamanupaktura at pagbebenta ng pang-industriyang lifting, mga produkto sa paghawak ng materyal, mga kagamitan sa haydroliko na mga tool sa pagtatayo ng gusali at mga tool sa pagtatayo ng kuryente Ang aming kasaysayan ay nagsimula noong 1999 bilang isang departamento ng pagbebenta at pagkatapos ng mga dekada ng pag-unlad ay gumastos ang aming mga negosyo sa higit sa 50 mga bansa sa limang kontinente. Noong 2019 sinimulan namin ang aming independiyenteng operasyon at binago bilang Giant Lift Co., Ltd. para sa mas magandang pag-unlad ng negosyo.
- W galit na lubid: Mataas na pagganap na matatag na wire rope
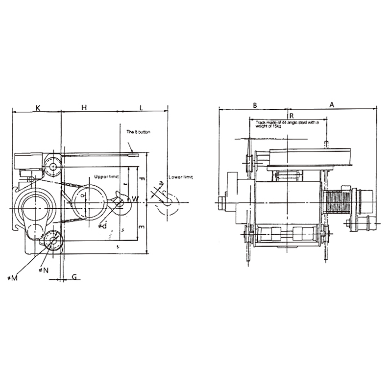
- Motor: three-stage fixed shaft helical gear rotating mechanism, gear at gear shaft ay gawa sa heat-treated alloy steel, box body, box cover ay gawa sa de-kalidad na cast iron, mahigpit ang assembly, maganda ang sealing. Reducer sa isang bahagi, ang paglo-load at pagbabawas ay napaka-maginhawa.
- Electromagnetic brake : Magpatibay ng electromagnetic brake na ligtas at
- Pagtatatak: IP55sealing performance ng motor at gearbox. Nakikibagay sa matinding kapaligiran sa pagtatrabaho
- M5 Rated: Maaaring gumana nang tuluy-tuloy sa ilalim ng rated load.
- Mababang ingay: Pagsisimula ng mababang ingay, patuloy na gumagana, sensitibong operasyon. Magmaneho sa ibabaw ng track pagtaasDouble-Track ay nagdudulot ng higit na katatagan, mas kaunting shacking para sa kargamento.
- Teknikal na Parameter: Load Capacity: 3-10 tonelada
- Bilis ng Pag-angat: 11m/min
- Bilis ng Pagmamaneho: 21m/min
- Kabuuang timbang: 480-1550KG
- O ption: Magdagdag ng frequency converter para isaayos ang bilis




.jpg)
-1.jpg)













